Kurzzusammenfassung / short summary:
1992 gelang im Westwerk der ehemaligen Klosterkirche von
Corvey die aufsehenerregende Entdeckung von
Wandvorzeichnungen (Sinopien) für sechs
lebensgroße, in Form von Stuckreliefs über den
Pfeilern des sogenannten Johanneschors angebrachten Figuren.
Die technischen Befunde lassen keinen Zweifel daran,
daß die Vorzeichnungen und damit auch die bis auf
wenige Fragmente verlorengegangenen Stuckfiguren aus
karolingischer Zeit stammen, genauer gesagt aus der Amtszeit
des Abtes Bovo (879–890), unter dem das Westwerk von
Corvey 885 geweiht wurde. Neben den Relieffragmenten
über den Zugängen zu der Krypta des Hildesheimer
Domes sind die Corveyer Funde somit ein weiterer Beleg
für den Gebrauch von Stuckplastik in karolingischen
Kirchenbauten des norddeutschen Raumes. Umstritten ist
jedoch bis heute die Deutung des ehemaligen Figurenprogramms
in Corvey. Handelte es sich um biblische Personen oder um
zeitgenössische Herrscher, um Heilige oder um
kaiserliche Fundatoren und Benefaktoren, an die hier
erinnert werden sollte? Diese Frage stand im Zentrum des
1996 vom Institut für Kunstgeschichte der
Universität Münster veranstalteten
wissenschaftlichen Kolloquiums, das Kunsthistoriker und
Historiker vereinte und ausdrücklich auch
– wie aus den in diesem Band versammelten
Beiträge zu ersehen ist – auf die mit jedem
Versuch einer Deutung der Stuckfiguren unmittelbar
zusammenhängenden Fragen der Baugestalt, der Nutzung
und des ehemaligen Ausmalungsprogramms des Corveyer
Westwerks sowie auf das Corveyer Gedächtniswesen den
Blick lenkte.

In 1992 the sensational discovery of wall sketches
(sinopia) for six life size figures was made in the Westwerk
of the former monastery church of Corvey. The figures were
in the form of stucco reliefs which were placed above the
pillars of the so-called Choir of St. John. The
technical data leaves no doubt that the sketches and the
figures – which except for a few fragments are
lost – are from the Carolingian period, more
precisely from the time of Abbot Bovo (879–890),
during whose period the Westwerk was consecrated in 885.
Besides the fragmentary reliefs above the entrances to the
crypt in the cathedral in Hildesheim, the findings in Corvey
are futher evidence of the use of stucco sculptures in
Carolingian churches in northern Germany. There is however a
dispute over the interpretation of the former program of the
figures in Corvey. Do they represent biblical persons or
contemporary rulers, saints or imperial founders and
benefactors who are to be commemorated? This was the central
question of a scientific meeting held by the Institute for
Art History of the University of Münster, Germany, in
1996. This meeting was for Art Historians and Historians
and, as can be seen by the essays in this volume, focused on
all issues of the former Westwerks' construction, usage, and
program of paintings as well as Corveys' commemoration
tradition insomuch as these themes pertained directly to
attemps of interpreting the stucco figures.
Aus dem Inhalt / from the book:
(Siehe
auch das PDF mit ausgewählten Originalseiten aus dem Buch/
also see the PDF with selected original pages from the book)
Vorwort
Die Autoren und ihre Beiträge (Inhaltsverzeichnis / table of contents)
Näheres zu den Beiträgen
Die Autoren und ihre Beiträge:
(Siehe
auch das PDF mit ausgewählten Originalseiten aus dem Buch/
also see the PDF with selected original pages from the book)
Vorwort
Hilde Claussen:
Karolingische Sinopien und Stuckfragmente im Corveyer Westwerk
Joachim Poeschke:
Herrscher oder Heilige? Zur Deutung der Sinopien von Corvey
Adriano Peroni:
Stucco, Pittura e Sinopie in S. Salvatore di Brescia e in S. Benedetto di Malles
Beat Brenk:
Wer sitzt auf der Empore?
Nikolaus Staubach:
Das Corveyer Dekorationsprogramm und die spätkarolingische Herrschaftsikonographie
Karl Heinrich Krüger:
Hochgestellte Persönlichkeiten in der Corveyer Memoria
P. Michael Hermes OSB:
Sgraffiti in der Westempore des Corveyer Westwerks
Uwe Lobbedey:
Die Baugestalt des Corveyer Westwerks. Forschungsstand und Aufgaben
Eckard Zurheide, Paul Hanning:
Die Steinbearbeitung im Corveyer Westwerk
Personenregister
Ortsregister
[nach oben / top]
Vorwort
»Die karolingischen Stuckfiguren im Westwerk von
Corvey – Zur Frage ihrer Deutung« war das Thema
eines von Kunsthistorikern und Historikern bestrittenen
wissenschaftlichen Kolloquiums, das auf Anregung von Hilde
Claussen vom 1. bis 3. November 1996 im Institut
für Kunstgeschichte der Universität Münster
stattfand. Anlaß zu der Tagung gab eine wenige Jahre
zuvor gelungene, aufsehenerregende Entdeckung im Westwerk
der Corveyer Klosterkirche. Im Obergeschoß des
Westwerkes, dem sogenannten Johanneschor, war Hilde Claussen
bei ihrer Untersuchung der von der ursprünglichen
Ausmalung des karolingischen Baues erhaltenen Fragmente im
Frühjahr 1992 auf sechs mit dem Pinsel in roter Farbe
ausgeführte Wandvorzeichnungen für
lebensgroße Figuren gestoßen. Vorzeichnungen
dieser Art, für die sich in der Fachsprache im
20. Jahrhundert die Bezeichnung Sinopien
eingebürgert hat, waren bis dahin vor allem im
Zusammenhang mit mittelalterlichen Wandmalereien bekannt
geworden. In situ erhaltene Reste von Stuck und von
Eichenholzkeilen ließen jedoch den sicheren
Schluß zu, daß es sich in Corvey nicht um
Vorzeichnungen für Wandmalereien, sondern um Sinopien
für Stuckfiguren handelte, die ebenso wie die von der
ehemaligen Ausmalung erhaltenen Reste in die Amtszeit des
Abtes Bovo I. (879–890), unter dem das Westwerk
885 geweiht wurde, zu datieren sind. In Halbrelief
ausgeführt, waren die in den Arkadenzwickeln
angebrachten Figuren – vier frontal auf den
Betrachter ausgerichtete männliche und zwei im
Dreiviertelprofil gezeigte weibliche – von der
Wand deutlich abgesetzt. Dem Fund kam insofern
größte Bedeutung zu, als durch ihn
– nach der ab 1984 erfolgten Freilegung der
Tympanonreliefs über den Zugängen zur Krypta des
Domes von Hildesheim – ein weiterer Beweis
dafür erbracht wurde, daß das zwischen der
Malerei und der Steinskulptur angesiedelte Medium der
Stuckplastik, von dem südlich der Alpen bei der
Ausstattung von frühchristlichen und
frühmittelalterlichen Kirchenräumen allem Anschein
nach verhältnismäßig häufig Gebrauch
gemacht wurde, das darüber hinaus in
frühmittelalterlichen Bauten jedoch lange Zeit nur im
Alpengebiet und in Frankreich nachweisbar war, zumindest
seit spätkarolingischer Zeit auch im Norden
Deutschlands bei der Ausgestaltung von
Kircheninnenräumen Anwendung fand und daß somit
die seit dem 12. Jahrhundert im sächsischen Raum
in größerem Umfang greifbare Stuckplastik
keineswegs ohne Vorgeschichte in der Region
war.
Hilde Claussen gelang es darüber hinaus, mehrere
Stuckfragmente, die bereits 1960 im Boden des Johanneschors
gefunden worden und seitdem im Landesamt für
Denkmalpflege in Münster dem Dornröschenschlaf
anheimgegeben waren, mit den Sinopien zu vereinen. Einen
ersten Bericht über den Corveyer Fund, der auch die
Integration der zuvor ein erratisches Dasein fristenden
Stuckfragmente miteinschloß, veröffentlichte sie
1995 in der Kunstchronik. Weitere Berichte folgten.
Weitgehend ausgeklammert blieb in diesen jedoch die Frage
der Deutung bzw. der Benennung der ehemals im Westwerk
angebrachten Figuren. »Ob hier Könige des Alten
Testaments oder gar römische Kaiser den Thron der
Karolinger umstanden, wird sich wohl nie feststellen
lassen«, konstatierte hierzu Dirk Schümer in
einem Artikel der Frankfurter Allgemeinen Zeitung vom
24. Dezember 1992, durch den die Corveyer Stucksinopien
erstmals einer breiteren Öffentlichkeit bekannt gemacht
wurden. Könige des Alten Testaments wird man jedoch
ebenso wie römische Kaiser mit Sicherheit
ausschließen können. Eher stellt sich die Frage,
ob es sich bei den Stuckfiguren um Heilige oder kaiserliche
Fundatoren und Benefaktoren handelte. Eben dieses Thema
stand bei dem Kolloquium von 1996 im Vordergrund.
Zwangsläufig geriet damit auch die alte Frage der
Nutzung des Westwerkes erneut ins Blickfeld. Die
Verschiedenheit der auf der Tagung vertretenen
Deutungsansätze und -resultate, die auch in der
Druckfassung der Beiträge vollständig gewahrt
blieb, wird den Kenner der Materie nicht überraschen.
Erreicht wurde gleichwohl das Ziel der Veranstaltung, das
darin bestand, die Diskussion um die Corveyer Sinopien in
Gang zu setzen und zu vertiefen, nicht hingegen
– wenn solches überhaupt zum Ziel
erklärt werden kann – sie
abzuschließen.
[nach oben / top]
Näheres zu den Beiträgen:
(Siehe
auch das PDF mit ausgewählten Originalseiten aus dem Buch/
also see the PDF with selected original pages from the book)
Hilde Claussen:
Karolingische Sinopien und Stuckfragmente im Corveyer Westwerk
Der zentrale Beitrag des Bandes ist der von Hilde
Claussen, in der sie die Auffindung und Dokumentation der
Sinopien, d.h. der Vorzeichnungen für lebensgroße
Stuckfiguren an den Wänden des Obergeschoßraumes
des Westwerks beschreibt. Hinzu kommen einzelne
Stuckfragmente, die bei früheren Restaurierungen
gefunden wurden und von denen einige an ihre
ursprüngliche Stelle wieder angepaßt werden
konnten. Da die Pinselzeichnungen durch eindeutige Befunde
in die Bauzeit des Westwerks (geweiht 885) datiert sind,
sind sie für die Kunstgeschichte von
allergrößter Bedeutung. Sie dokumentieren als
einzige fest datierte Beispiele die Existenz
lebensgroßer figürlicher Skulpturen in der
Karolingerzeit. Die Rekonstruktion der Corveyer Figuren aus
den sehr fragmentarisch erhaltenen Spuren stellt
höchste Anforderungen, denen die Autorin außer
durch genaueste Beobachtung auch durch
kostümgeschichtliche Vergleiche mit
zeitgenössischen Elfenbeinreliefs und Miniaturen
nachzukommen sucht. In Ermangelung von dargestellten
Attributen und unmittelbaren Vergleichsmöglichkeiten
muß sie die Deutung der vier männlichen und zwei
weiblichen Gestalten vom Befund her offenlassen.
[nach oben / top]
Joachim Poeschke:
Herrscher oder Heilige? Zur Deutung der Sinopien von Corvey
Die Beantwortung der im Titel des Beitrags gestellten
Frage »Herrscher oder Heilige?« geht
zunächst von den Dekorationssystemen
frühchristlich-mittelalterlicher Kirchenräume und
deren durch den Wandaufriß bedingter hierarchischer
Struktur insgesamt aus, um sodann die Corveyer Befunde in
diesem Zusammenhang zu beurteilen. Des weiteren wird
aufgezeigt, daß die als Chlamysträger erkennbaren
Figuren in Corvey nicht zwingend als zeitgenössische
Herrschergestalten zu deuten sind, sondern ebenso Heilige
dargestellt haben könnten. Anordnung und Typik der
Figuren zusammengesehen lassen, so das Fazit, eher letzteres
als ersteres vermuten.
[nach oben / top]
Adriano Peroni:
Stucco, Pittura e Sinopie in S. Salvatore di Brescia e in S. Benedetto di Malles
Nell'occasione di un riesame delle tracce di una grande
decorazione con figure a stucco nel Westwerk di Corvey,
magistralmente illustrata da Hilde Claussen, mi sembra di
qualche interesse rimettere a confronto due cicli decorativi
frammentari come quelli di S. Salvatore a Brescia e di
S. Benedetto di Malles per insistere sulla stratigrafia
esecutiva che in entrambi i casi permette di osservare come
la pittura e lo stucco siano stati coordinatamente eseguiti.
In questo processo un ruolo ben noto va riconosciuto alle
sinopie, gli abbozzi preparatori che, precedendo l'intero
contesto, aprono uno spiraglio di qualche interesse sui
rapporti tra pittori e stuccatori.

Sembrerebbe che i primi dispongano di una più
logica preparazione per l'organizzazione dei tracciati
fondamentali e di una probabile consuetudine all'esercizio
grafico preparatorio nei termini che noi riteniamo
normalmente documentato da una sinopia. Ricordo che
c'è una documentazione molto variabile sulle sinopie,
e anche addirittura un Museo delle Sinopie, a Pisa, con
molte centinaia di metri quadrati di superfici disegnate.
Né mancano esempi spettacolari di interi cicli
pittorici rimasti incompiuti e per secoli scomparsi come
quello famoso del Pisanello nel Palazzo Ducale di Mantova,
dove si possono seguire tutte le fasi dal disegno
preparatorio fino alla pittura più compiuta in tutte
le possibili sfumature. Ma si tratta di casi eccezionali
anche solo per le circostanze che hanno prodotto i
ritrovamenti, peraltro riguardanti opere di epoca ben
diversa da quella che prendiamo in considerazione. Non
abbiamo testimonianze così esaurienti per l'alto
Medio Evo, tuttavia vengono alla luce e studiati sempre
nuovi reperti.
[nach oben / top]
Beat Brenk:
Wer sitzt auf der Empore?
Das Thema ist die Zweckbestimmung der Westwerke. Am
Anfang wird auf die Aachener Pfalzkapelle mit ihrem –
allerdings erst für 936 sicher belegten – Thron
auf der Empore eingegangen. Es folgt eine kritische Revision
der Literatur von Effmann über Fuchs, Schramm,
Bandmann, Möbius bis zu Kreusch. Nachfolgend wird
herausgearbeitet, dass es um die Unterscheidung von zwei
unterschiedlichen Typen geht. Bei dem einen handelt es sich
um hochgelegene Kapellen, die der Privatandacht und
Gottesdiensteilnahme von Herrschern und Kirchenpatronen
dienen. Sie können im Westen oder auch im Osten,
seitlich des Chores, liegen. Kennzeichen ist ein direkter
Zugang von den herrscherlichen Wohnräumen aus. Dieser
ist bei den davon zu unterscheidenden eigentlichen
Westwerken nicht vorhanden. Deren Obergeschosse haben einen
öffentlichen Charakter, sie dienen der Messfeier
für die Gläubigen und der Aufstellung großer
Chöre. In ihrer Nachfolge stehen einerseits romanische
Westemporen für Mönchschöre wie Lambach und
andererseits die Westemporen in den Kanonissenstiften. Bei
den letzteren kommt zu der besseren akustischen Wirkung des
Psalmengesanges von der Empore aus die Möglichkeit der
Absonderung von den Laien als Motiv für die Nutzung
dieser Bauform.

[nach oben / top]
Nikolaus Staubach:
Das Corveyer Dekorationsprogramm und die spätkarolingische Herrschaftsikonographie
Der Beitrag prüft, ob sich die
erklärungsbedürftigen und kontrovers diskutierten
Besonderheiten in Raumsituation und Dekorationsprogramm des
Corveyer Westwerks – Quadrum, Geschoßgliederung,
Empore, Odysseus- und Meerwesen-Fresken, Stuckfiguren
– durch einen gemeinsamen herrschaftstheologischen
Bezugspunkt sinnvoll verbinden lassen, so daß seine
Bestimmung als »Herrscherkirche« wahrscheinlich
wird. Damit soll lediglich ein möglicher
Deutungshorizont rekonstruiert, nicht eine verbindliche
Lösung »bewiesen« werden. So ist
zunächst auf die theologische Bedeutung und die
Vorbildwirkung der Aachener Konzeption eines Emporenthrons
im kirchlichen Zentralbau hinzuweisen, wie sie in
zeitgenössischen Text- und Bildzeugnissen insbesondere
aus dem Umkreis Karls des Kahlen faßbar werden.

Mit ihren Assistenzfiguren bieten seine Thronbilder
zugleich einen Deutungsansatz für die Corveyer
Sinopien. Ferner wird skizziert, wie Themen und Gestalten
der antik-paganen Mythologie – Odysseus, Herkules
– im 9. Jahrhundert durch eine Interpretatio
christiana entschärft Eingang in die Herrscherpanegyrik
gefunden haben. Mit der sog. »Cathedra Petri«
wird schließlich ein realer Herrscherthron
vorgestellt, der die verschiedenen Elemente der für
Corvey zu erwägenden Programm-Konzeption in sich
vereinigt: Thronfunktion, anagogische Zonen-Gliederung,
allegorisch-typologische Mythen- und Monstren-Darstellungen
(Herkules-Zyklus) und Huldigungsszenen im Kontext einer
herrscherlichen Triumphalikonographie.
[nach oben / top]
Karl Heinrich Krüger:
Hochgestellte Persönlichkeiten in der Corveyer Memoria
Ziel ist es, die hochgestellten
Persönlichkeiten aus dem Corveyer Westwerk zu
identifizieren. Es handelt sich – ungeachtet der
verlorenen Ostwand – um zwei Damen und vier
Herren, die als Stuckfiguren über den Pfeilern an der
Innenwand des Quadrums angebracht waren. Da die Corveyer
Schriftquellen weitgehend erhalten sind, sollte es
möglich sein, sie in den Texten wiederzufinden. Es geht
vor allem um Zeugnisse der Memoria, des
Gebetsgedenkens, vom 9. bis zum 18. Jahrhundert:
Königsurkunden, Liber vitae, Reliqienverzeichnis,
Katalog der verlorenen Chorfenster, Figuren des
Chorgestühls. Nun läßt sich keine Vierer-
oder gar Sechsergruppe als solche ermitteln, weder als
Heiligen- noch als Stiftergruppe. Jedoch finden sich gerade
während der Erstellung des Westwerkes 873–885 in
Corveyer Königsurkunden bezeichnende Erwähnungen
von Vorfahren und Verwandten der karolingischen
Wohltäter. Zugleich präsentiert der Vollender des
Baus, Abt Bovo I., seinem Besucher König Arnulf
889 das Kloster als »Memoria für das ganze
(karolingische) Geschlecht«. Diese Besonderheit des
historischen Momentes (K. Hauck) läßt auf
Stifterbildnisse schließen, z.B. Ludwig den Frommen,
Ludwig den Deutschen (876), Lothar I., vielleicht
angeführt von Karl dem Großen oder fortgesetzt
mit einem noch Jüngeren. Die Damen neben der
großen Öffnung der Westempore könnten das
Mutterkloster Corbie und Corvey oder
– später
nachweisbare –Königinnen darstellen.
[nach oben / top]
P. Michael Hermes OSB:
Sgraffiti in der Westempore des Corveyer Westwerks
Die von F. Kreusch publizierte Deutung, es handele sich
bei den Buchstabenritzungen an den Pfeilern der Westempore
um Noten für Instrumentalisten, die den
gottesdienstlichen Gesang begleiteten, kann nicht aufrecht
erhalten werden. Zwar bezeichnen die Buchstaben, die nach
ihrer Form wohl dem 10. bis 11. Jahrhundert
angehören, offensichtlich Noten, doch sind sie keiner
bestimmten musikalisch-liturgischen Form zuzuordnen. Ihre
Deutung ergibt sich vielmehr aus der bisher noch nicht
wahrgenommenen Ritzzeichnung von Kopf und Oberkörper
eines Mönchs über den Buchstaben. Angedeutet ist
die Darstellung einer Unterrichtssituation, bei der der
cantor seine pueri an Hand eines Monochords in
der Musiklehre unterweist. Der Befund ist – und
dafür spricht auch der Anbringungsort an einer Stelle,
die nur nach Erklettern der Brüstung erreichbar ist
– als Kritzelei zeitweilig unbeaufsichtigter
Klosterschüler des hohen Mittelalters zu deuten.
[nach oben / top]
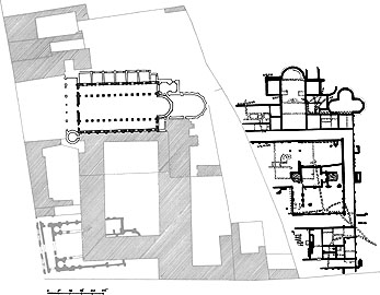
Uwe Lobbedey:
Die Baugestalt des Corveyer Westwerks. Forschungsstand und Aufgaben
Das Westwerk von Corvey verlangt als architektonischer
Ort der figürlichen Ausstattung Beachtung. Bislang
wurde zu wenig wahrgenommen, daß es in der Literatur
über den Bau, immerhin eine Inkunabel der
abendländischen Architekturgeschichte, nur eine
unauflösliche und widersprüchliche Mischung von
wahren und falschen Behauptungen, aber keine
verläßliche Bestandsaufnahme gibt. Warum dies so
ist, erläutert U. Lobbedey in seinem Beitrag zur
Forschungsgeschichte. Er stellt die von unterschiedlichen
Ausgangspunkten kommenden Bemühungen um den Befund und
die Rekonstruktion der karolingischen Baugestalt seit mehr
als hundert Jahren dar. Die Aufgaben und Möglichkeiten
einer hoffentlich in absehbarer Zeit zu publizierenden
Dokumentation aller noch erfaßbaren Baubefunde werden
erläutert. Rekonstruktionszeichnungen des
karolingischen Zustandes auf neuestem Stand greifen dieser
Publikation schon ein wenig vor.
[nach oben / top]
Eckard Zurheide, Paul Hanning:
Die Steinbearbeitung im Corveyer Westwerk
Der Beitrag des Steinmetzmeisters P. Hanning und des
Ingenieurs E. Zurheide gehört in den
baugeschichtlichen Bereich. Die Steinbearbeitung wird schon
seit längerem in der Bauforschung beachtet. Hier
allerdings werden die Möglichkeiten dieser Methode mit
dem Erfahrungshintergrund eines älteren
Steinmetzmeisters und mit einer standardisierten
Fotodokumentation auf einem neuen Niveau gezeigt und damit
zugleich bisher kontrovers diskutierte Befunde
überzeugend geklärt. Daß die
Steinbearbeitung mit der »Fläche« in
karolingischer Zeit geläufig war, wird
bestätigt.
[nach oben / top]
|